Glasgow es la ciudad más grande y el motor industrial de Escocia, cuyos astilleros en el río Clyde producían a finales del siglo XIX el 80% de la industria naviera británica. No muy lejos del río, la escuela se halla apostada en una colina de la calle Renfrew, en un barrio donde predominan las casas victorianas pero donde también hay otras obras de Mackintosh. A pesar de que mi alojamiento queda en la misma calle (una bohardilla de una antigua casa desde donde garabateé algunas de estas líneas, una madrugada en que una tormenta escocesa se llevó mi sueño) no es posible distinguir el perfil de la escuela, ya que un edificio que cruza la calle como un puente bloquea la vista. El efecto sorpresa, por tanto, al traspasar este enorme pórtico, es notable: ante nuestros ojos se despliega la fachada norte del edificio de la escuela, y es notoria la pendiente que Mackintosh tuvo que resolver en los lados este y oeste del mismo.
ANTECEDENTES
Es interesante saber que Charles R. Mackintosh diseñó este proyecto cuando era practicante en el estudio de Honeyman y Keppie, apenas a sus 29 años. Mackintosh había sido estudiante de la Escuela de Arte, pero su diseño no tenía nada que ver con el estilo victoriano que se le había enseñado. Por el contrario, experimentaba con una concepción vanguardista, una volumetría masiva y austera, de masas ortogonales pero levemente suavizada con curvas, que expresaba la severidad de la tradición arquitectónica escocesa y la combinaba con la ligereza de la modernidad europea o norteamericana. De hecho, el lenguaje de Mackintosh es mucho menos ornamental que otros de sus contemporáneos modernistas, como Gaudí en Barcelona o Victor Horta en París.
El proyecto se concluyó en dos partes: la primera, entre 1897-99, constaba de talleres, la oficina del director, una sala de exhibición, servicios y la vivienda del guardián. La segunda, entre 1907-09, incluyó nuevos talleres, una biblioteca, auditorio y un salón de reuniones.
INFLUENCIAS
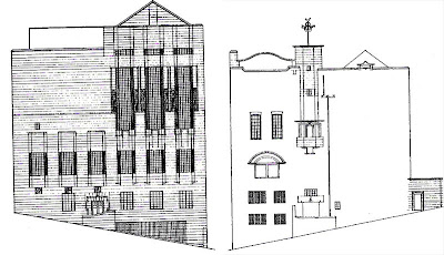
La arquitectura tradicional escocesa fue una inspiración importante para Mackintosh. Algunos autores han encontrado similitudes entre la imponencia de la gran fachada norte con la del castillo de Linlithgow, mientras que la escala más vernacular de las fachadas este y oeste, particularmente en la masividad de las paredes, la irregularidad de las ventanas y los volúmenes prominentes semejando torreones, son reminiscentes de las casas medievales de los barones escoceses.
La arquitectura japonesa también tuvo influencia en Mackintosh, quien nunca visitó Japón, pero tuviera contacto con la cultura nipona mediante exposiciones en Glasgow y Edinburgo. La organización de los espacios basados en una simple y rectilínea geometría, el uso de pantallas deslizantes, el diseño de las ventanas e incluso el diseño de la reja externa, inspirada en motivos de la heráldica nipona, fueron influenciados por la arquitectura tradicional japonesa.
Mackintosh amalgamó estas influencias con las tendencias florales del art noveau y elementos y materiales modernos, añadiendo sus propias innovadoras ideas y produciendo un conjunto ecléctico pero unitario.
LA PROPUESTA
La concepción del edificio se basa en una planta similar a una E, es decir una sucesión de talleres unidos por una espina de circulación.




El diseño favorece la orientación de los talleres hacia el norte, dotándolos de una fachada rica en ventanas que permitan el ingreso de luz natural. Hacia el este ubicó un cuarto de diseño y hacia el oeste la biblioteca.
Las ventanas de la fachada norte, enmarcadas en una cuadrícula de acero que contrasta con la enmohecida textura de piedra de la pared, se decoran con unos originales puntales metálicos con motivos celtas, que sobresalen rítmicamente en la fachada.
Un poco desfasado del centro de la fachada se ubica el ingreso principal de la escuela, presidido por una escalera que refuerza su centralidad.



Frente a la fachada se ubica una larga reja metálica, decorada con formas representando animales, como un ave, escarabajo o una hormiga. En medio de la reja ubicó un arco frente a la entrada principal.

En contraposición a la imponencia de la fachada principal, las fachadas laterales ofrecen un lenguaje más vernacular.
Los interiores fueron diseñados en colaboración con Margaret Macdonald, utilizando motivos florales y geométricos de estilo Art Noveau en las luminarias, alfombras, mobiliario, chimeneas e inclusive la vajilla.
Es particularmente notorio el trabajo de los vitrales en ventanas, puertas o paneles decorativos, algunos de ellos representando motivos florales o insectos abstractos.





Pero sin duda el ambiente más impresionante es la biblioteca, rediseñada en 1906. Está concebida como espacio a doble altura, con una mezanine que balconea hacia el piso principal. Se trata de una trama de columnas y vigas trabajadas con madera oscura que organizan el espacio en diversas subáreas, al estilo japonés. El techo, sin embargo, no es soportado por las columnas, sino que es suspendido por tirantes externos de hierro y decorado con vidrio multicolor. Este recurso se debe a que debajo de la biblioteca se halla el auditorio, el cual obviamente debía hallarse exento de columnas.
El minucioso diseño de Mackintosh abarcó desde lo urbano (una volumentría moderna y vanguardista pero insertada en las proporciones del contexto), lo arquitectónico (tomando códigos vernaculares como foráneos y amalgamándolos en una propuesta coherente) y el diseño interior (el tratamiento de superficies, luminarias, mobiliario y elementos decorativos), combinando una estética formal única con un lógico sentido estructural, logrando una de las obras maestras de la arquitectura del siglo XX.
VER TAMBIEN
– ART NOVEAU-MODERNISMO






















